THE HABITAT

The Habitat Bình Dương là khu căn hộ cao cấp tọa lạc trên trục Quốc lộ 13 – tuyến giao thông huyết mạch kết nối trực tiếp khu Bắc TP.HCM với trung tâm Bình Dương. Dự án sở hữu lợi thế hiếm có khi nằm liền kề Aeon Mall Bình Dương Canary, cho phép cư dân tiếp cận chuỗi mua sắm – giải trí – ẩm thực quy mô quốc tế chỉ trong vài phút di chuyển.
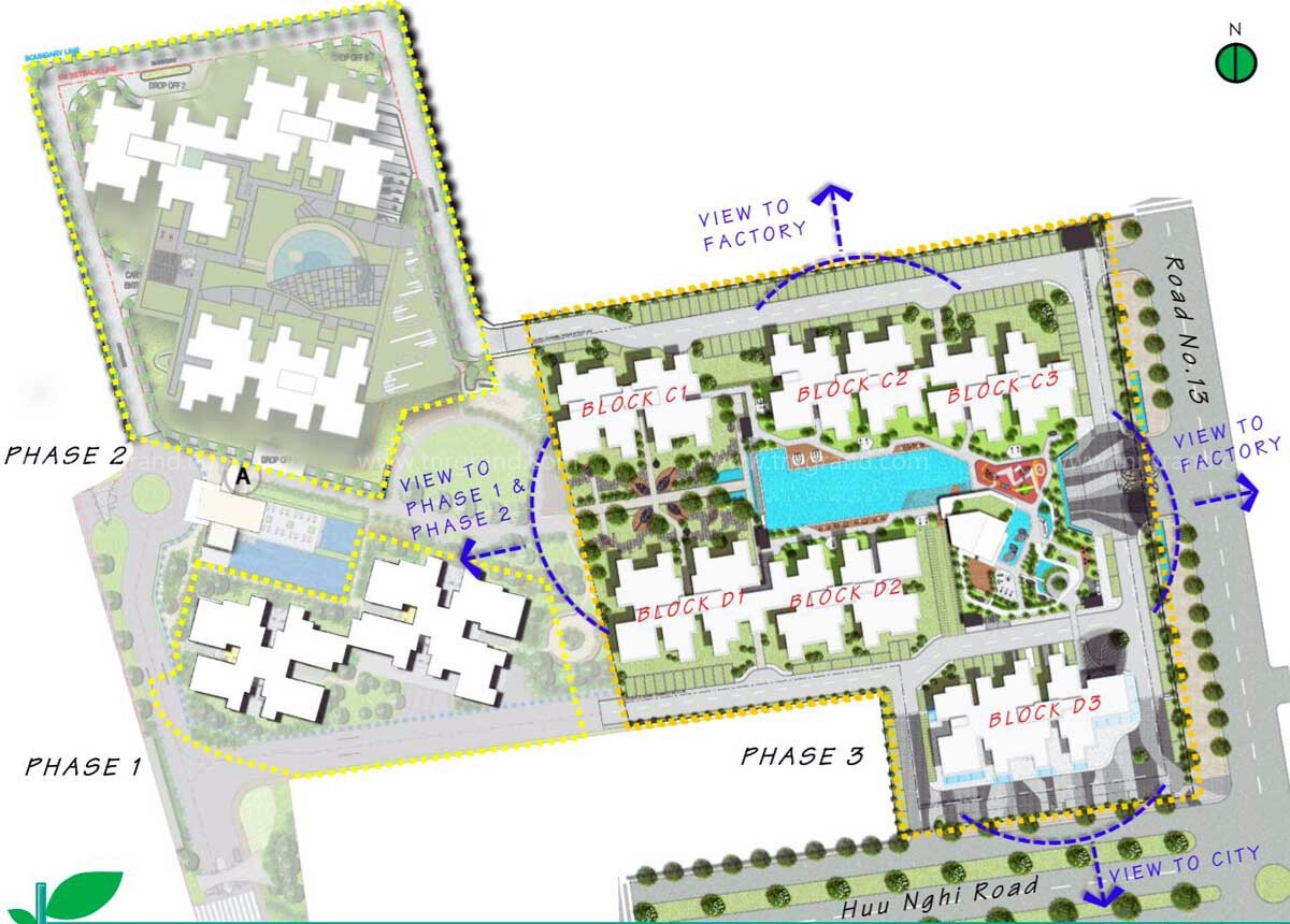
Tổng thể dự án gồm 11 tòa tháp, được phát triển theo 3 giai đoạn bài bản. Giai đoạn 1 đã hoàn thiện và đưa vào sử dụng ổn định; giai đoạn 2 chính thức bàn giao từ tháng 6/2020; và giai đoạn 3 – gồm 6 block cao 18 tầng – đã hoàn tất xây dựng, khép lại toàn bộ quá trình triển khai và bàn giao trong năm 2025. Điều này giúp The Habitat trở thành một khu dân cư hoàn chỉnh, vận hành đồng bộ và ổn định.
Nằm sát Khu công nghiệp VSIP I, The Habitat được phát triển bởi liên doanh giữa Sembcorp Gateway (Singapore) và Công ty TNHH Phát triển VSIP Bình Dương – hai thương hiệu uy tín gắn liền với các khu đô thị – công nghiệp chuẩn mực quốc tế. Dự án nổi bật với định hướng phát triển không gian sống xanh, tiện ích được bố trí hợp lý, cùng môi trường cư trú an toàn và văn minh theo phong cách Singapore.
Nhờ chất lượng xây dựng ổn định, dịch vụ quản lý chuyên nghiệp và cộng đồng cư dân trí thức, The Habitat Bình Dương trở thành lựa chọn ưu tiên của chuyên gia nước ngoài, quản lý cấp cao và người lao động chất lượng cao đang làm việc tại các khu công nghiệp lân cận. Đây không chỉ là nơi an cư bền vững, mà còn là tài sản có giá trị khai thác cho thuê hiệu quả tại khu vực trung tâm công nghiệp năng động bậc nhất phía Nam.
TỔNG QUAN THE HABITAT

| Hạng mục | Nội dung diễn giải |
|---|---|
| Tên dự án | The Habitat |
| Chủ đầu tư | Dự án được phát triển bởi liên doanh giữa Sembcorp Gateway (Singapore) và Công ty TNHH Phát triển VSIP – hai đơn vị quốc tế uy tín, giàu kinh nghiệm trong lĩnh vực quy hoạch và phát triển đô thị xanh bền vững. |
| Vị trí | The Habitat tọa lạc tại số 8 Đại lộ Hữu Nghị, khu VSIP 1, phường Bình Hòa, TP. Hồ Chí Minh. Vị trí nằm ngay lõi khu công nghiệp – đô thị sôi động, dễ dàng kết nối các khu vực trọng điểm và liền kề Aeon Mall Bình Dương. |
| Loại hình sản phẩm | Căn hộ ở kết hợp shophouse thương mại. |
| Quy mô dự án | Dự án được triển khai trên quỹ đất rộng 4 ha với mật độ xây dựng khoảng 36%, gồm các block căn hộ cao từ 16 đến 18 tầng. Sản phẩm đa dạng từ căn hộ 2 – 3 phòng ngủ, diện tích linh hoạt trong khoảng 67 – 100m², phù hợp cả nhu cầu an cư lẫn đầu tư. |
| Tiện ích nội khu | Cư dân được tận hưởng hệ tiện ích khép kín gồm hồ bơi tràn bờ, khu BBQ ngoài trời, gym – spa, trung tâm mua sắm, khu thương mại – ẩm thực, nhà hàng, làng nướng, nhà trẻ, khu sinh hoạt cộng đồng và khối văn phòng tiện ích, đáp ứng trọn vẹn nhịp sống hiện đại mỗi ngày. |
| Pháp lý | Người Việt Nam được sở hữu lâu dài; người nước ngoài sở hữu có thời hạn 50 năm theo quy định hiện hành. |
| Giá bán tham khảo | Mức giá dự kiến từ 45 – 50 triệu/m², được đánh giá là hợp lý trong phân khúc căn hộ tiêu chuẩn quốc tế tại khu vực phát triển năng động bậc nhất Bình Dương. |
VỊ TRÍ CĂN HỘ THE HABITAT

The Habitat Bình Dương sở hữu vị trí chiến lược hiếm có khi tọa lạc ngay Đại lộ Hữu Nghị, giao điểm với đường số 3, thuộc phường Bình Hòa, TP. Hồ Chí Minh. Đây là khu vực trung tâm của trục đô thị – công nghiệp phát triển năng động bậc nhất phía Bắc thành phố, nơi hội tụ đồng thời hạ tầng giao thông hoàn chỉnh, khu công nghiệp quy mô lớn và hệ tiện ích hiện hữu đồng bộ.
Từ The Habitat, cư dân dễ dàng tiếp cận các điểm đến trọng yếu chỉ trong vài phút di chuyển. Aeon Mall Bình Dương Canary, sân golf Sông Bé và Trường Quốc tế nằm trong bán kính gần, đáp ứng trọn vẹn nhu cầu mua sắm, thư giãn và giáo dục chất lượng cao cho cả gia đình.
Di chuyển xa hơn một chút, trong khoảng 7 phút, cư dân đã có mặt tại các trung tâm y tế – thương mại lớn như Bệnh viện Quốc tế Becamex, Bệnh viện Hạnh Phúc, Lotte Mart, Mega Market, đảm bảo cuộc sống tiện nghi, chủ động và an tâm mỗi ngày.
Với bán kính 10 phút, The Habitat kết nối thuận tiện đến Chợ Lái Thiêu, các cơ sở y tế quốc tế và nhiều khu dân cư hiện hữu sầm uất. Đặc biệt, vị trí dự án cho phép kết nối nhanh đến Khu Đại học Quốc gia TP.HCM trong khoảng 30 phút, và Sân bay Tân Sơn Nhất khoảng 35 phút, phù hợp với nhóm cư dân là chuyên gia, quản lý cấp cao và người thường xuyên di chuyển liên vùng.
Nhờ lợi thế nằm tại tâm điểm giao thông – tiện ích – khu công nghiệp, cùng khả năng liên kết vùng linh hoạt, The Habitat Bình Dương không chỉ đáp ứng chuẩn mực sống tiện nghi, hiện đại mà còn là tài sản có giá trị khai thác và tích lũy bền vững, đặc biệt trong bối cảnh khu vực Bình Hòa đang gia tăng mạnh nhu cầu nhà ở chất lượng cao cho cộng đồng chuyên gia trong và ngoài nước.

TIỆN ÍCH DỰ ÁN THE HABITAT
The Habitat Bình Dương không đơn thuần là một khu căn hộ để ở, mà được định hình như một môi trường sống chuẩn mực, nơi mọi tiện ích được tổ chức khoa học nhằm nuôi dưỡng chất lượng sống bền vững. Dự án theo đuổi triết lý phát triển xanh, tạo nên không gian cư trú trong lành, cân bằng và tràn đầy năng lượng tích cực cho cư dân mỗi ngày.
Ngay từ lối vào, khu thương mại nội khu và sảnh đón tiếp được thiết kế chỉn chu đã thể hiện rõ tinh thần sống văn minh, hiện đại. Không gian chung không chỉ phục vụ nhu cầu sinh hoạt thường nhật mà còn trở thành điểm kết nối cộng đồng, nơi cư dân gặp gỡ, giao lưu và tận hưởng nhịp sống chậm giữa đô thị năng động.
Bao quanh các khối nhà là hệ cảnh quan xanh đa tầng với vườn cây nhiệt đới, đường dạo bộ rợp bóng mát, khu sinh hoạt ngoài trời và thảm cỏ Habitat đặc trưng. Các mảng xanh được bố trí có chủ đích, vừa tạo khoảng thở tự nhiên, vừa mang lại cảm giác thư thái hiếm có – yếu tố làm nên bản sắc riêng của The Habitat.
Đáp ứng nhu cầu vận động và chăm sóc sức khỏe, dự án tích hợp chuỗi tiện ích thể thao – thư giãn đa dạng như hồ bơi phong cách nghỉ dưỡng, hồ bơi dành cho trẻ em, không gian thiền định, khu yoga ngoài trời. Điểm nhấn là khu cabana ven hồ, nơi cư dân có thể thả lỏng cơ thể, tái tạo năng lượng và tận hưởng những khoảnh khắc riêng tư yên bình.
Sự kết hợp hài hòa giữa kiến trúc hiện đại, quy hoạch xanh và hệ tiện ích tinh chọn đã giúp The Habitat Bình Dương trở thành lựa chọn an cư lý tưởng cho cộng đồng cư dân đề cao sức khỏe, sự tinh tế và giá trị sống lâu dài – một không gian sống đáng tự hào giữa trung tâm đô thị – công nghiệp phát triển bậc nhất khu vực.






MẶT BẰNG CĂN HỘ HABITAT
The Habitat Bình Dương tạo dấu ấn khác biệt ngay từ cách tổ chức mặt bằng, nơi mọi chi tiết đều được tính toán nhằm tối ưu sự riêng tư, yên tĩnh và cảm giác thoải mái cho cư dân. Mỗi tầng chỉ giới hạn từ 7 đến 10 căn hộ, mang lại mật độ sinh hoạt thấp – yếu tố hiếm có giúp không gian sống luôn thông thoáng, an toàn và tách biệt khỏi sự ồn ào thường thấy tại các khu căn hộ đông đúc.
Không gian sống tại The Habitat là sự giao thoa hài hòa giữa nhịp sống đô thị hiện đại và hơi thở thiên nhiên trong lành. Cư dân có thể tận hưởng sự năng động của khu vực phát triển sôi động, đồng thời vẫn cảm nhận được sự thư thái, cân bằng ngay khi trở về nhà. Chính triết lý sống này đã khiến dự án trở thành lựa chọn ưu tiên của gia đình trẻ thành đạt, chuyên gia nước ngoài và cả nhà đầu tư dài hạn đang tìm kiếm sản phẩm có giá trị khai thác bền vững.
Dự án phát triển nhiều dòng căn hộ linh hoạt từ 1 đến 3 phòng ngủ, phù hợp với nhiều mục đích sử dụng khác nhau – từ ở thực, cho thuê đến tích lũy tài sản. Mỗi căn hộ được thiết kế theo hướng tối ưu công năng, bố trí không gian hợp lý, tận dụng ánh sáng tự nhiên và luồng gió đối lưu, mang đến cảm giác rộng rãi, dễ chịu và tràn đầy sinh khí.
Với thiết kế tinh tế, môi trường sống chất lượng và hệ tiện ích hoàn chỉnh, The Habitat Bình Dương là nơi an cư lý tưởng mà còn là không gian sống đáng mơ ước giữa trung tâm đô thị phát triển – nơi mỗi ngày trôi qua đều là hành trình tận hưởng trọn vẹn giá trị sống hiện đại và bền vững.











GIÁ BÁN THE HABITAT
Với mức giá dự kiến chỉ từ 45 – 50 triệu/m², căn hộ The Habitat Bình Dương – giai đoạn 3 đang nổi lên như một trong những sản phẩm hiếm hoi vừa đáp ứng nhu cầu ở thực, vừa tối ưu khả năng đầu tư tại khu vực trung tâm phát triển sôi động bậc nhất Bình Dương. So với mặt bằng chung các dự án cùng phân khúc, đây được xem là mức giá hợp lý, giàu dư địa tăng trưởng trong trung và dài hạn.
Sở hữu vị trí chiến lược ngay lõi đô thị – công nghiệp, The Habitat không chỉ mang đến không gian sống chuẩn mực, tiện nghi và đậm chất xanh, mà còn hưởng lợi trực tiếp từ làn sóng phát triển hạ tầng, sự gia tăng mạnh mẽ của cộng đồng chuyên gia, kỹ sư và người nước ngoài sinh sống – làm việc tại khu vực. Chính yếu tố này tạo nên nguồn cầu thuê ổn định, giúp dự án luôn giữ được sức hút bền vững trên thị trường.
Đặc biệt, giai đoạn hiện tại được xem là thời điểm lý tưởng để “xuống tiền”, khi chủ đầu tư đang áp dụng chính sách bán hàng linh hoạt, ưu đãi hấp dẫn và hỗ trợ tài chính tối ưu, giúp khách hàng dễ dàng sở hữu căn hộ mà không chịu áp lực dòng tiền lớn.
👉 Liên hệ ngay để cập nhật bảng giá mới nhất, chính sách ưu đãi theo từng thời điểm và nhận tư vấn chuyên sâu, hỗ trợ quý khách chọn đúng sản phẩm – mua đúng thời điểm – gia tăng giá trị bền vững trong tương lai.

CĂN HỘ MẪU THE HABITAT






